2005 - 2020
folded house
project designers: Jeffrey P. Turko, Gudjon T. Erlendsson
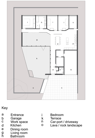
The design for the folded house evolved out of the extreme conditions that we were confronted with on site, the extreme winds and the dramatic conditions of natural light. A limited material palette was also a constraint. Since Iceland has no forests or steel mills both materials were going to be limited based on budget restrictions. The house was designed as a protective bunker. Formalised through a single surface wall that would make up the outer edge of the house then extending around the building plot to create a perimeter wall. This move allows for the space of the house to be extended out to the boundary of the site but also creating a feeling of privacy and a wind protected external courtyard area for the house. The two exterior wall faces of the L-shaped plan faces south and west to be left open allowing light to penetrate deeply into the plan of the house and to create a stronger relationship between the interior and exterior spaces
№ 1/14
№ 1/1
Next project: → teaser: tex-fab competition
Previous project: ← urban anomaly & anomalous gallery













